
Park Place Retirement Community
Senior Communities, Independent Living & Assisted Living · Tennessee, TN
Park Place Retirement Community
Senior Communities, Independent Living & Assisted Living · Tennessee, TN
Park Place Retirement Community is a vibrant haven where retirement unfolds in the most fulfilling and enriching ways. Situated in a bustling yet serene locale Hendersonville community, this community offers diverse range of options for independent and assisted living, tailored to suit the unique preferences and needs of each resident. From beautifully designed living spaces to an array of amenities that cater to an active lifestyle, Park Place fosters an environment where residents can relish every moment of their retirement years.
What truly sets Park Place Retirement Community apart is its dedication to creating a supportive and caring environment. The professional and compassionate staff are committed to enhancing the quality of life for every resident, offering personalized care and assistance while preserving their independence and dignity. The community’s focus on holistic well-being encompasses not only physical health but also mental stimulation and emotional fulfillment.
Types of Care at Park Place Retirement Community
Independent Living
Assisted Living
49-bed community Rank #354 / 429Bed count — State benchmarkedThis home is ranked 354th out of 429 homes in Tennessee. Shows this facility's certified or reported bed count compared to other Tennessee SNFs. Larger communities may offer more amenities, programs, and on-site services for residents and families.Click the rank badge to see the full State ranking.Click here to see the full State ranking.
A moderately sized community that may balance personal attention with shared amenities and social activities.
28 years in operation Rank #170 / 383Years in operation — State benchmarkedThis home is ranked 170th out of 383 homes in Tennessee. Shows how long this facility has been in operation compared to other Tennessee SNFs. Longer operating histories may benefit residents, families, and staff.Click the rank badge to see the full State ranking.Click here to see the full State ranking.
A longer operating history, which may indicate experience navigating regulations and delivering ongoing care.
Walk Score: 60 / 100 Rank #66 / 555Walk Score — State benchmarkedThis home is ranked 66th out of 555 homes in Tennessee. Shows how walkable this facility's neighborhood is compared to the average Walk Score across Tennessee SNFs. Higher scores benefit residents, families, and staff.Click the rank badge to see the full State ranking.Click here to see the full State ranking.
Moderately walkable. Some errands can be accomplished on foot, with a mix of nearby amenities.
About this community
Facility TypeAssisted Care Living Facility
StatusLicensed
IssuanceJanuary 9, 1998
ExpirationNovember 15, 2026
CountySumner
License Number00000075
Park Place Retirement Community is legally operated by Park Place Senior Living, LLC, and administrated by Renysia Fugghett.
24-Hour Staffing
Pets Allowed
HousekeepingYes
Linen ServiceYes
Utilities IncludedYes
ActivitiesFull calendar of events and activities.
Food DescriptionThree healthy and delicious meals daily.
Residents information
Stay stats
Average length of stay
676 days
Total residents
17
Total admissions (2024)
25
Total discharges (2024)
27
Discharges
- To Private Residence or Home 3
- To Nursing Home 8
Demographics
GENDER
- Female Residents 58.8%
- Male Residents 41.2%
AGE DISTRIBUTION
- 85-89 64.7%
- 90 or more 35.3%
ETHNICITY
What does this home offer?
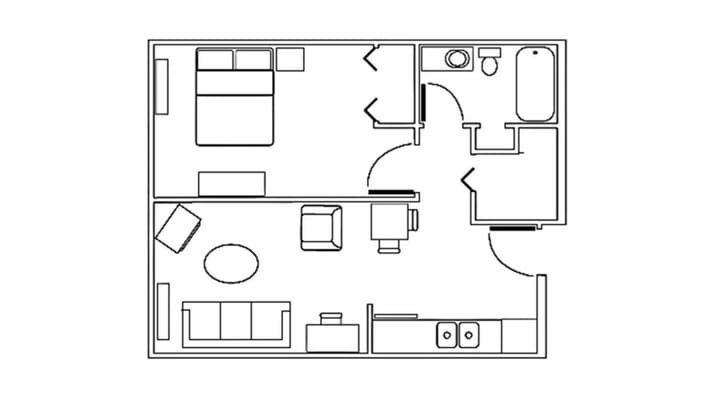
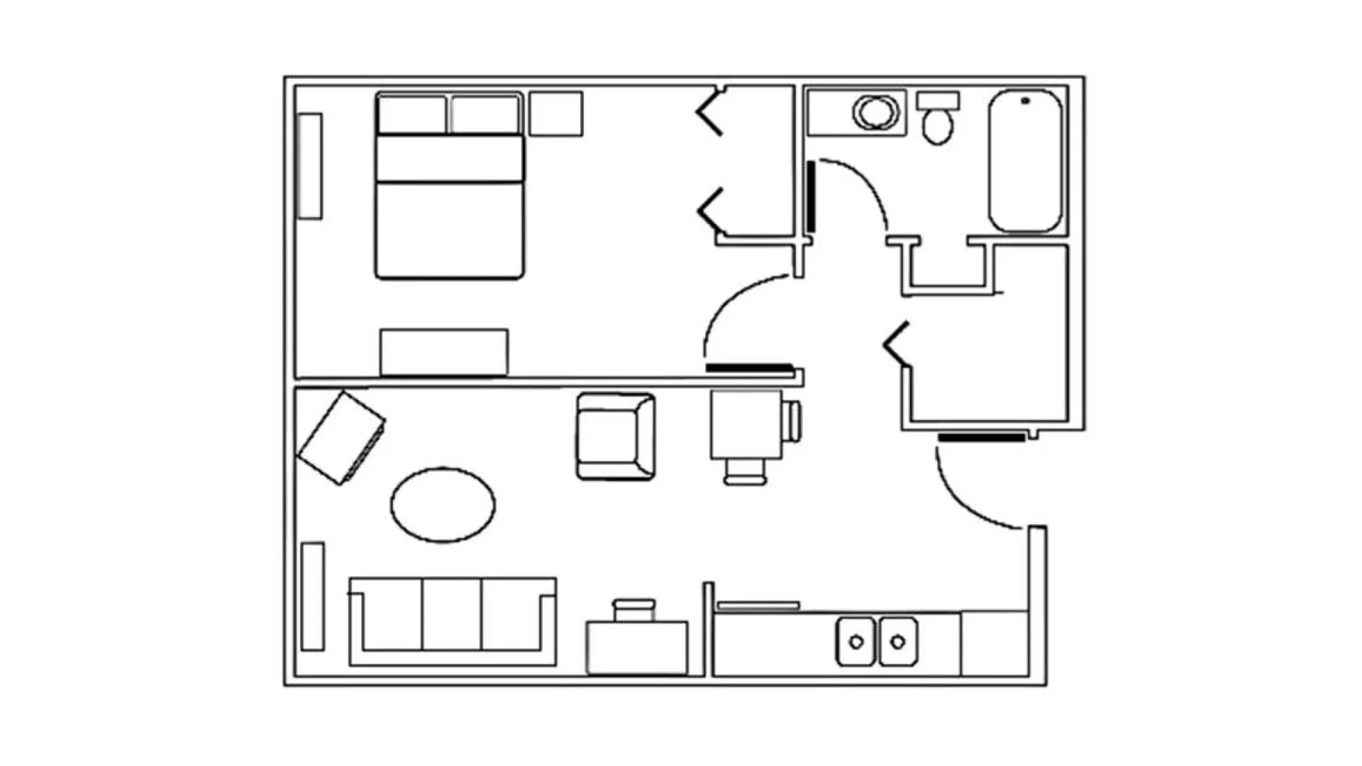
Housing Options: Studio / 1 Bed
Building Type: Mid-rise
Transportation Services
Fitness and Recreation
Places of interest near Park Place Retirement Community
78.8 miles from city center
Estimated distance in miles from Hendersonville's city center to Park Place Retirement Community's address, calculated via Google Maps.
— 3.72 miles to nearest hospital (Tennessee Orthopaedic Alliance (TOA) - Hendersonville)
Calculate Travel Distance to Park Place Retirement Community
Add your location
Financial Assistance for
Senior Communities in Tennessee
Park Place Retirement Community is located in Hendersonville, Tennessee.
Here are the financial assistance programs available to residents in Tennessee.
Compare Senior Communities around Tennessee
The information below is reported by the Tennessee Department of Health, Division of Health Care Facilities.
Filter by care type
| Morning Pointe of East Hamilton |
AL Assisted Living A licensed, long-term care setting for seniors or individuals with disabilities who need help with daily activities — like bathing, dressing, and medication management — but not 24-hour skilled nursing. Offers housing, meals, and around-the-clock support while aiming to maximize resident independence.
MC Memory Care Secured, specialized care for people living with Alzheimer's or dementia. Staff trained in cognitive impairment, with higher staff-to-resident ratios and an environment designed to reduce confusion and wandering risk. | Ooltewah (Collegedale) | 81 | Yes | 26 | Studio / 1 Bed | 6 | 86.4% | A+ | Ian Shives | East Hamilton Medical Investors, LLC | 412 days |
| Morning Pointe of Franklin |
AL Assisted Living A licensed, long-term care setting for seniors or individuals with disabilities who need help with daily activities — like bathing, dressing, and medication management — but not 24-hour skilled nursing. Offers housing, meals, and around-the-clock support while aiming to maximize resident independence.
MC Memory Care Secured, specialized care for people living with Alzheimer's or dementia. Staff trained in cognitive impairment, with higher staff-to-resident ratios and an environment designed to reduce confusion and wandering risk. | Franklin | 80 | Yes | 25 | Studio / 1 Bed | 9 | 92.5% | A+ | Jenna Alley | Franklin Tn Medical Investors, LLC | 649 days |
| Clarendale at Indian Lake |
NH Nursing Home Licensed facility providing 24/7 skilled nursing care for residents with complex, ongoing medical needs. Staffed by RNs, LPNs, and CNAs. Inspected and star-rated annually by CMS. Accepts Medicare (short-term rehab) and Medicaid (long-term care).
AL Assisted Living A licensed, long-term care setting for seniors or individuals with disabilities who need help with daily activities — like bathing, dressing, and medication management — but not 24-hour skilled nursing. Offers housing, meals, and around-the-clock support while aiming to maximize resident independence.
IL Independent Living Lifestyle-focused communities for older adults offering dining, activities, and transportation with minimal personal care. Best for active, independent seniors who want community without medical support.
MC Memory Care Secured, specialized care for people living with Alzheimer's or dementia. Staff trained in cognitive impairment, with higher staff-to-resident ratios and an environment designed to reduce confusion and wandering risk. | Hendersonville (Indian Lake Boulevard) | 78 | No | 38 | Studio / 1 Bed | 6 | 93.6% | A+ | Mitchell Metzger | Hendersonville Tn Senior Living Leaseco, | 508 days |
| Schilling Gardens Senior Living |
MC Memory Care Secured, specialized care for people living with Alzheimer's or dementia. Staff trained in cognitive impairment, with higher staff-to-resident ratios and an environment designed to reduce confusion and wandering risk.
AL Assisted Living A licensed, long-term care setting for seniors or individuals with disabilities who need help with daily activities — like bathing, dressing, and medication management — but not 24-hour skilled nursing. Offers housing, meals, and around-the-clock support while aiming to maximize resident independence.
HC Home Care Professional care delivered in the person's own home — from companionship and errands to skilled nursing and therapy. Allows seniors to age in place. Medicare covers skilled home health when medically necessary.
RC Respite Care Short-term temporary care — days to weeks — to give family caregivers a break. Full care provided during the stay. Often used after hospitalization or to trial a facility before a permanent placement decision. | Collierville | 78 | Yes | 29 | Studio / 1 Bed | 44 | 61.5% | A+ | Heather Overall | Southside Nursing , LLC | 433 days |
| Park Place Retirement Community |
SC Senior Communitie
AL Assisted Living A licensed, long-term care setting for seniors or individuals with disabilities who need help with daily activities — like bathing, dressing, and medication management — but not 24-hour skilled nursing. Offers housing, meals, and around-the-clock support while aiming to maximize resident independence.
IL Independent Living Lifestyle-focused communities for older adults offering dining, activities, and transportation with minimal personal care. Best for active, independent seniors who want community without medical support. | Hendersonville (Highland Acres) | 49 | No | 60 | Studio / 1 Bed | 28 | - | - | Renysia Fugghett | Park Place Senior Living, LLC | 676 days |
Frequently Asked Questions about Park Place Retirement Community
What neighborhood is Park Place Retirement Community in?
Park Place Retirement Community is in the Highland Acres neighborhood of Hendersonville.
Who is the owner of Park Place Retirement Community?
The legal owner and operator of Park Place Retirement Community is Park Place Senior Living, LLC.
Is Park Place Retirement Community in a walkable area?
Park Place Retirement Community has a walk score of 60. Moderately walkable. Some errands can be accomplished on foot, with a mix of nearby amenities.
What is the license number of Park Place Retirement Community?
According to TN state health department records, Park Place Retirement Community's license number is 00000075.
When does Park Place Retirement Community's license expire?
According to TN state health department records, Park Place Retirement Community's license expires on November 15, 2026.
Does Park Place Retirement Community have different floorplan options?
Yes — see the floorplan options available at Park Place Retirement Community on this page.
Who is the administrator of Park Place Retirement Community?
Renysia Fugghett is the administrator of Park Place Retirement Community.
Guides for Better Senior Living
Care Cost Calculator: See Prices in Your Area
Nursing Home Data Explorer
Don’t Wait Too Long: 7 Red Flag Signs Your Parent Needs Assisted Living Now
The True Cost of Assisted Living in 2025 – And How Families Are Paying For It
Understanding Senior Living Costs: Pricing Models, Discounts & Financial Assistance
Contact Us

Feedback
Write a review for Park Place Retirement Community
Rate your overall experience with this community
Explore Open Rooms
1
Contact details
2
What type of senior care service are you looking for?
3
What budget do you have in mind for senior care?
4
How soon do you need to find care?
5
Additional details
Thank you for your interest!
Our team will be in touch shortly to help with next steps.
Need Help?
Let us help you or a loved one find the perfect senior home.



