
Maple Heights Senior Living
Independent Living · Wayne County, MI
Maple Heights Senior Living
Independent Living · Wayne County, MI
Live an ultimately convenient life with Maple Heights Senior Living located in Allen Park, MI. This trusted community offers independent living services. A wide array of accommodations including studio, one-bedroom, and two-bedroom are available for its residents. Committed to providing a comfortable, sociable, and inviting place to live, this community assures its residents with top-tier care and services that they will surely enjoy.
These include a fitness center, theater, salon, library, dining room wherein residents can maximize their living experience. Explore its beautifully made shared spaces like the lounges, patios, and courtyards. Meet new people and create unforgettable memories in this wonderful community. Thus, Maple Heights Senior Living proudly stands as a premier life community plan to be called home for senior living.
Types of Care at Maple Heights Senior Living
Independent Living
Walk Score: 62 / 100 Rank #120 / 702Walk Score — State benchmarkedThis home is ranked 120th out of 702 homes in Michigan. Shows how walkable this facility's neighborhood is compared to the average Walk Score across Michigan SNFs. Higher scores benefit residents, families, and staff.Click the rank badge to see the full State ranking.Click here to see the full State ranking.
Moderately walkable. Some errands can be accomplished on foot, with a mix of nearby amenities.
About this community
Specific ProgramsActs of Kindness
Food DescriptionNutritious home-cooked meals served in restaurant style dining rooms.
What does this home offer?
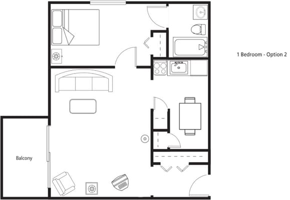
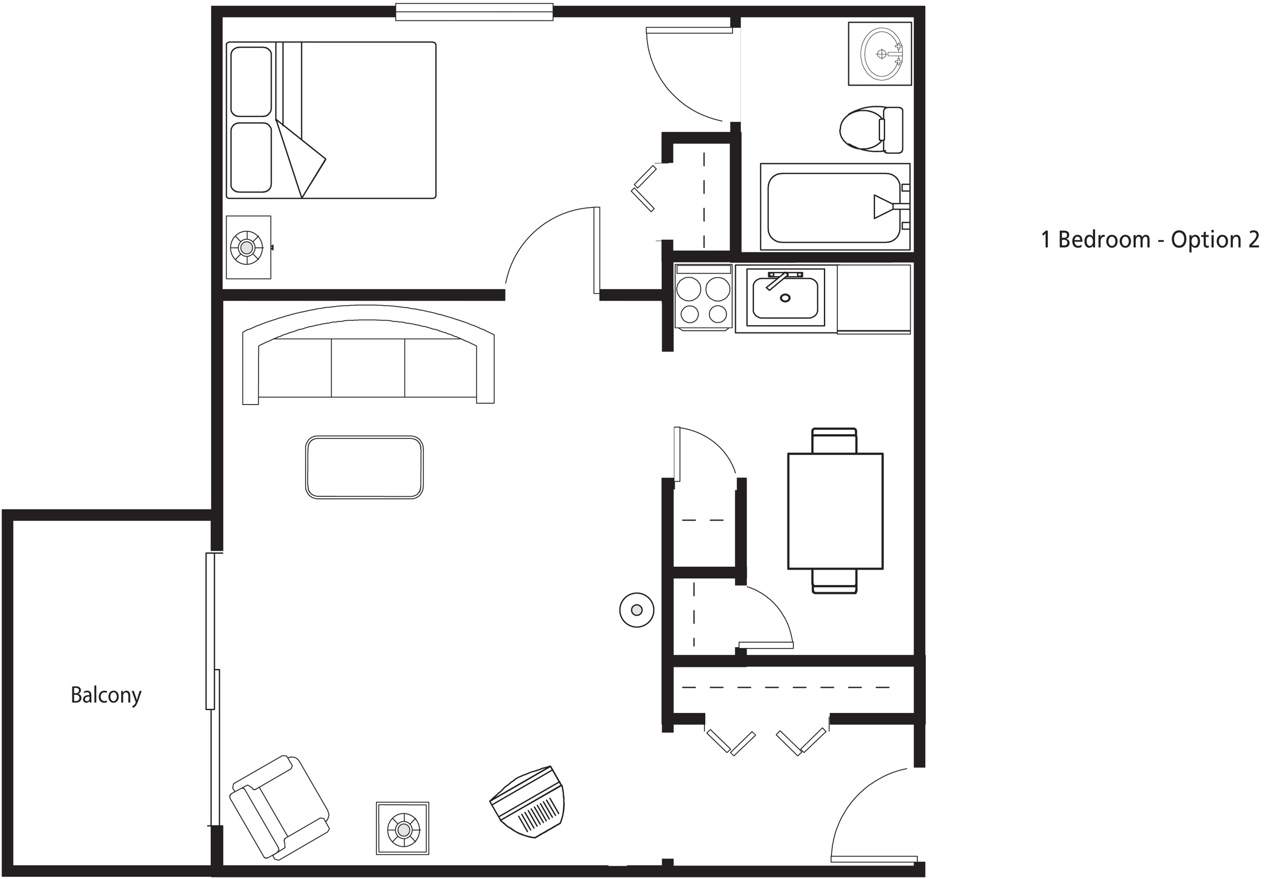
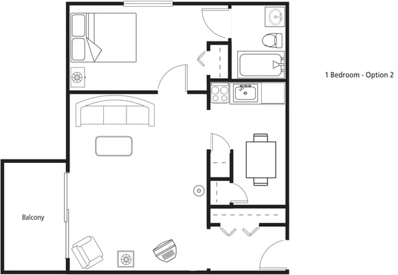
Room Sizes: 410 / 439 / 585 . 849 / 942 sq. ft
Housing Options: Studio / 1 Bed / 2 Bed
Building Type: High-rise
Dining Services
Beauty Services
Exercise Programs
Places of interest near Maple Heights Senior Living
1.1 miles from city center
Estimated distance in miles from Allen Park's city center to Maple Heights Senior Living's address, calculated via Google Maps.
Calculate Travel Distance to Maple Heights Senior Living
Add your location
Financial Assistance for
Independent Living in Michigan
Maple Heights Senior Living is located in Allen Park, Michigan.
Here are the financial assistance programs available to residents in Michigan.
Compare Independent Living around Wayne County
Filter by care type
| Hampton Manor of Trenton |
NH Nursing Home Licensed facility providing 24/7 skilled nursing care for residents with complex, ongoing medical needs. Staffed by RNs, LPNs, and CNAs. Inspected and star-rated annually by CMS. Accepts Medicare (short-term rehab) and Medicaid (long-term care).
AL Assisted Living A licensed, long-term care setting for seniors or individuals with disabilities who need help with daily activities — like bathing, dressing, and medication management — but not 24-hour skilled nursing. Offers housing, meals, and around-the-clock support while aiming to maximize resident independence.
IL Independent Living Lifestyle-focused communities for older adults offering dining, activities, and transportation with minimal personal care. Best for active, independent seniors who want community without medical support.
MC Memory Care Secured, specialized care for people living with Alzheimer's or dementia. Staff trained in cognitive impairment, with higher staff-to-resident ratios and an environment designed to reduce confusion and wandering risk. | Trenton | 120 | Yes | 26 | Studio / 1 Bed / 2 Bed | 1 | - | 4 | 4 | 1.0 | Hampton Manor Of Trenton LLC |
| Plymouth Terrace |
IL Independent Living Lifestyle-focused communities for older adults offering dining, activities, and transportation with minimal personal care. Best for active, independent seniors who want community without medical support. | Plymouth (Plymouth Charter Township) | 75 | No | 20 | Studio / 1 Bed / 2 Bed | 1 | - | 3 | 2 | 0.7 | Wre Plymouth Holdings, LLC |
| Maple Heights Senior Living |
IL Independent Living Lifestyle-focused communities for older adults offering dining, activities, and transportation with minimal personal care. Best for active, independent seniors who want community without medical support. | Allen Park | - | No | 62 | Studio / 1 Bed / 2 Bed | - | - | - | - | - | - |
| Ashford Court Senior Living |
IL Independent Living Lifestyle-focused communities for older adults offering dining, activities, and transportation with minimal personal care. Best for active, independent seniors who want community without medical support. | Westland | - | No | 59 | Studio / 1 Bed / 2 Bed | 20 | A+ | - | - | - | - |
| Westhaven Manor |
IL Independent Living Lifestyle-focused communities for older adults offering dining, activities, and transportation with minimal personal care. Best for active, independent seniors who want community without medical support. | Westland (Westhaven Manor) | - | Yes | 73 | Studio / 1 Bed / 2 Bed | - | - | - | - | - | - |
Frequently Asked Questions about Maple Heights Senior Living
What neighborhood is Maple Heights Senior Living in?
Maple Heights Senior Living is in the Allen Park neighborhood.
Is Maple Heights Senior Living in a walkable area?
Maple Heights Senior Living has a walk score of 62. Moderately walkable. Some errands can be accomplished on foot, with a mix of nearby amenities.
Are there photos of Maple Heights Senior Living?
Yes — there are 28 photos of Maple Heights Senior Living in the photo gallery on this page.
What is the address of Maple Heights Senior Living?
Maple Heights Senior Living is located at 4600 Allen Rd, Allen Park, MI 48101, United States.
What is the phone number of Maple Heights Senior Living?
(313) 383-6226 will put you in contact with the team at Maple Heights Senior Living.
Is Maple Heights Senior Living Medicare or Medicaid certified?
Maple Heights Senior Living is not currently listed as a CMS-certified provider of Medicare or Medicaid.
Guides for Better Senior Living
Care Cost Calculator: See Prices in Your Area
Nursing Home Data Explorer
Don’t Wait Too Long: 7 Red Flag Signs Your Parent Needs Assisted Living Now
The True Cost of Assisted Living in 2025 – And How Families Are Paying For It
Understanding Senior Living Costs: Pricing Models, Discounts & Financial Assistance
Contact Us

Feedback
Write a review for Maple Heights Senior Living
Rate your overall experience with this community
Explore Open Rooms
1
Contact details
2
What type of senior care service are you looking for?
3
What budget do you have in mind for senior care?
4
How soon do you need to find care?
5
Additional details
Thank you for your interest!
Our team will be in touch shortly to help with next steps.
Need Help?
Let us help you or a loved one find the perfect senior home.



