Holiday Walnut Woods
Holiday Walnut Woods is an Independent Living Home in Pennsylvania
Holiday Walnut Woods is an Independent Living Home in Pennsylvania
Holiday Walnut Woods
Holiday Walnut Woods is an Independent Living Home in Pennsylvania
Holiday Walnut Woods is an Independent Living Home in Pennsylvania
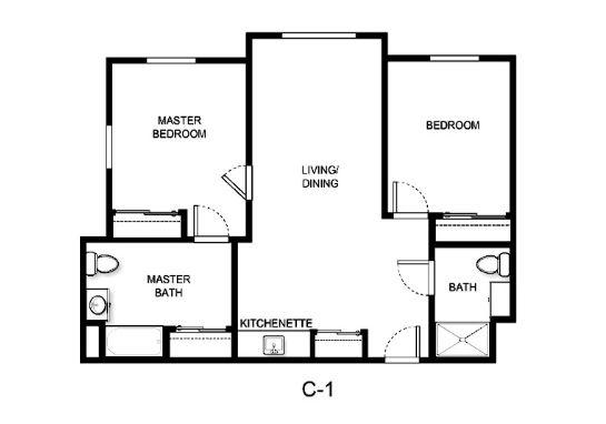
Located at the scenic Walnut Street, Boyertown, PA, Holiday Walnut Woods is an ideal senior living community that offers independent living. The community features a variety of spacious and graceful floor plans including studio, one-bedroom, and two-bedroom apartments. Focusing on the seniors’ well-being, the community collaborates with the seniors and their loved ones to ensure they receive the best-suited care and assistance for their unique needs and preferences.
Holiday Walnut Woods provides an exclusive Engage Life program that enhances the seniors’ quality of life through different classes and activities related to their social, mental, emotional, spiritual, and physical wellness. Forging meaningful connections among its residents, the community encourages its residents to bond over meals. Three healthy homecooked meals are freshly served daily. The community ensures the comfort and safety of its residents with pet-friendly and wheelchair-accessible amenities such as a barber and beauty salon, a community center, a lounge area, an activity room, a game room, a library, a theater, a business center, a country store, an overlooking patio, an aesthetic garden and community grounds, and peaceful walking paths.
What does this home offer?
Pets Allowed: Yes, Pets Allowed
Room Sizes: 370 - 387 / 564 - 630 / 838 sq. ft.
Housing Options: Studio / 1 Bed / 2 Bed
Building Type: 3-story
Transportation Services
Fitness and Recreation
Touring Checklist for Senior Living
Touring a community? Use this expert-backed checklist to stay organized, ask the right questions, and find the perfect fit.
Location
Community Spaces and Overall Environment
Services
Staffing
Accommodations
Finances
Other Notes
Send Checklist to Your Email
We'll send you a PDF version of the touring checklist.
Types of Care at Holiday Walnut Woods
Type of Rooms Available
Places of interest near Holiday Walnut Woods
16.8 miles from city center
35 N Walnut St, Boyertown, PA 19512
Calculate Travel Distance to Holiday Walnut Woods
Add your location
Comparison Chart
For self-sufficient seniors seeking community and minimal assistance.
For self-sufficient seniors seeking community and minimal assistance.
For seniors needing help with daily tasks but not full-time nursing.
For self-sufficient seniors seeking community and minimal assistance.
For seniors needing help with daily tasks but not full-time nursing.
For self-sufficient seniors seeking community and minimal assistance.
Specialized care for those with Memory Loss, Alzheimer's, or dementia, ensuring safety and support.
For seniors needing help with daily tasks but not full-time nursing.
For self-sufficient seniors seeking community and minimal assistance.
Guides for Better Senior Living
From costs to care, explore the most important topics to make informed decisions about your future.
Claim What’s Yours: Financial Aid for Pennsylvania Seniors
- General: Age 65+ or disabled, Pennsylvania resident, Medicaid-eligible, nursing home-level care need.
- Income Limits (2025): ~$2,829/month (300% FBR, individual).
- Asset Limits: $2,000 (individual), $3,000 (couple) (excludes home, car).
- PA Specifics: Managed care model; high urban demand (e.g., Philadelphia, Pittsburgh).
- Services: Personal care (5-7 hours/day, e.g., bathing, dressing), respite care (up to 240 hours/year), adult day care ($70/day), home modifications ($1,500 avg.).
- General: Age 60+, Pennsylvania resident, at risk of nursing home placement.
- Income Limits: ~$2,000/month (individual, varies by region).
- Asset Limits: $8,000 (individual).
- PA Specifics: Cost-sharing required above certain income; rural/urban balance.
- Services: In-home care (3-5 hours/week), respite (up to 10 days/year), adult day care (~$70/day), transportation (~5 trips/month).
- General: Age 55+, PA resident (specific counties), NFLOC, safe with LIFE support.
- Income Limits (2025): ~$2,829/month (Medicaid-eligible); private pay option available.
- Asset Limits: $2,000 (individual), $3,000 (couple) for Medicaid enrollees.
- PA Specifics: 16 providers in 25 counties (e.g., Allegheny, Luzerne); LIFE branding unique to PA.
- Services: Personal care (5-7 hours/day), medical care, meals, transportation, respite, therapies.
- General: Age 65+ or disabled, PA resident, Medicare Part A/B.
- Income Limits (2025): ~$2,510/month (QMB), ~$3,380/month (SLMB), ~$3,598/month (QI)—individual.
- Asset Limits: $9,430 (individual), $14,130 (couple).
- PA Specifics: Three tiers; includes Extra Help for Part D; no waitlist.
- Services: Covers Part B premiums ($174.70/month), deductibles ($240/year), copays (~20%).
- General: Age 60+ prioritized, PA resident, low-income household.
- Income Limits (2025): ~$3,970/month (individual, 185% FPL).
- Asset Limits: Not assessed; income-focused.
- PA Specifics: Cash grants and crisis aid; serves ~600,000 households annually.
- Services: Heating/cooling aid ($300-$1,000/season), crisis aid ($500 max).
- General: Caregivers of 60+ needing care or 55+ caregivers of others; PA resident; functional needs (2+ ADLs).
- Income Limits (2025): No strict cap; reimbursements up to $600/month if care recipient income < ~$2,322/month (185% FPL).
- Asset Limits: Not assessed; need-based.
- PA Specifics: High demand; includes grandparent caregivers.
- Services: Respite (4-6 hours/week or 5 days/year), adult day care ($60/day), supplies (~$2,000/year), caregiver training.
- General: Age 55+, unemployed, low-income, PA resident.
- Income Limits (2025): ~$1,983/month (125% FPL).
- Asset Limits: Not specified; income-focused.
- PA Specifics: Priority for veterans, rural residents; AARP partnership.
- Services: Paid training (~20 hours/week at ~$7.25/hour), job placement.
- General: Age 65+ or disabled veteran/spouse, PA resident, wartime service, need for ADL help (A&A) or homebound.
- Income Limits (2025): Net income < ~$1,984/month (veteran with dependent, A&A); pension offsets income.
- Asset Limits: ~$155,356 (net worth limit).
- PA Specifics: High veteran population; supports rural/urban care needs.
- Services: Cash (~$1,433-$2,642/month veteran, ~$951-$1,318 spouse) for care costs (e.g., in-home, assisted living).
- General: Age 65+, PA resident, homeowner/renter (or widow/er 50+, disabled 18+).
- Income Limits (2025): ~$45,000/year (individual or couple, excludes half of Social Security).
- Asset Limits: Not assessed; income-focused.
- PA Specifics: Rebates up to $1,000; ~600,000 eligible annually.
- Services: Rebates ($250-$1,000 based on income; e.g., $1,000 if income < $8,000).
- General: Age 60+, PA resident, low-income.
- Income Limits (2025): ~$2,322/month (individual, 185% FPL).
- Asset Limits: Not assessed.
- PA Specifics: Vouchers (~$50/season) via 52 AAAs; serves ~200,000 annually.
- Services: Vouchers (~$50/season) for fresh produce at approved markets.
Contact Us

What questions do you have about Holiday Walnut Woods?
We’ll help you with pricing, availability, and anything else you need.
Your Senior Care Partner, Every Step of the Way
We help families find affordable senior communities and unlock same day discounts, Medicaid, and Medicare options tailored to your needs.
Contact us Today
More homes from Atria
Homes near Boyertown, PA
























































































































































































